CLIENT ZONE
Project Estimate
Client Name: Zhenghao
Location: Redmond, WA
Scope of Work: Kitchen Remodel, Flooring, House Painting
Kitchen Remodel
SCOPE OF WORK
1. Demolition and Removal
- Remove existing kitchen cabinets, backsplash, and countertop.
- Disconnect and remove all existing appliances.
- Dispose of all removed materials, including cabinets and countertops, in accordance with local regulations.
- Remove two existing walls in the kitchen closet/pantry area.
- Remove a bulkhead (soffit) above the wall cabinets in the corner area to create a finished appearance
2. Preparation
- Verify and confirm all new appliance measurements prior to starting work (appliances to be supplied by the client).
- Prepare walls where the backsplash was removed: install drywall as needed, patch, mud, and sand for a smooth surface.
- Prepare floor area for new cabinet installation.
- Patch wall and ceiling areas where 2 walls demolition was performed. Apply texture to match existing finishes.
- Prime and apply two coats of paint to all repaired areas.
- Paint kitchen area as required before cabinet installation.
3. Plumbing
- Inspect existing plumbing connections.
- Relocate faucet drain and water lines to align with the center of the future sink location.
- Install new faucet after countertop installation (sink and countertop installation by separate company).
4. Electrical
- Inspect and verify all electrical outlets to ensure GFCI compliance.
- Relocate or prepare outlet for new hood installation.
- Replace existing outlet covers to match the new backsplash color.
5. Cabinetry
- Cabinets to be supplied pre-made and delivered
- Delivery of cabinets and assembling is included.
- Verify all measurements prior to installation to ensure proper fit.
- Install all new base and wall cabinets per approved layout.
- Install two tall panels on both sides of the refrigerator to accommodate a 24" deep upper cabinet above the fridge.
- Finish visible sides of the peninsula with decorative 24" base panels, and cover the partial back of the peninsula with matching panels.
- Verify cabinet alignment near window area for proper transition around the sink corner.
- Prepare all cabinets for countertop installation.
- 2 Tall Cabinet Installation:
- Prepare the designated area for installation of two tall cabinets.
- Install both tall cabinets securely and level.
- One of the tall cabinets will be designated for the microwave installation.
6. Microwave Installation Preparation
All microwave specifications and installation details must be discussed and confirmed prior to ordering the microwave to ensure compatibility with the tall cabinet dimensions.
7. Countertop and Sink
- Countertop and undermount sink will be installed by the countertop manufacturer (billed separately to the client).
- After countertop and sink installation, install faucet and verify plumbing connections.
8. Backsplash
- Install new backsplash from tile or from the same quarts as countertop, as selected by client.
- Grout, clean, and apply caulk at all necessary joints and corners for a finished appearance.
9. Hood and Appliances
- Install hood above the range and connect to electrical outlet. Hood model: - under cabinet, insert, stand alone Check with the designer before ordering for specs and dimensions. Example of hood model
- Prepare kitchen space for appliance installation.
- Installation of refrigerator, dishwasher, and range is not included as usually it is done by the company supplying the appliances.
- Client Attention: you can order all appliances according your requirements and budget here:
https://www.kingandbunnys.com/
https://www.albertlee.biz/ or Costco
Fridge: better to order Smart Counter-Depth 36" fridge. Dimensions are: W: 35.75 in. Hx 70.25 in.
PHOTOS
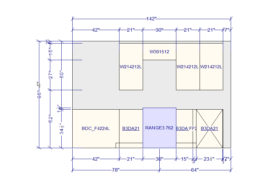
Kitchen Plan. Cabinets: Slim Shaker, White.
Base Cabinets: 9 cabinets, Wall cabinets: 12 cabinets, Tall Cabinets: 2 cabinets
Total: 23 Cabinets
Proposed Cabinets (Slim Shaker, white color) - see here
Cost before tax (Labor + Rough Material) :
- Demolition and Removal: $1200
- Backsplash Installation - from tile : (30sf, 5 outlets.) tile supplied by client. $1300
- Backsplash Installation - from the quarts : (30sf, 5 outlets.) 2100
- New faucet installation, Hood and Microwave Installation - $600
- Demolish and remove two existing walls and bulkhead (soffit) above the wall cabinets in the corner area in the kitchen closet/pantry area to prepare for 2 tall cabinets installation. Close cuts in the ceiling with the drywall, Mud, tape, finish, texture, paint $1500
-----------------------------
Sub Total: $4650
Kitchen Cabinets + Installation , Kitchen Countertop + Installation:
- Cabinets (9 base, 12 wall, 2 tall - Total 23 cabinets) (Delivered , Assembled) - $8500
- Cabinet Installation, including 2 tall cabinets, panels, decorative panels , toe kick: $2500
- Countertop Manufacturing and Installation, (Includes holes, sink installation) Sink is supplied by Client - $6200
-----------------------------
Sub Total: $17200
----------------------------------------------------------------------------------
TOTAL COST: (Labor, Rough Material, Finished Material): $21850
Cost before tax
Floor Installation, Painting
OPTION1.
Floor Installation. Keeping existing level of floor. Replace carpet with the hardwood floor similar to existing. Area 145"X148"
Cost before tax (Labor + Rough Material) : $2500
Remove carpet, put the floor at the area 145X148, stain and lacquer to make it look similar to the existing floor
Included: Labor and Rough Materials
Project Duration: 5-6 business days.
Price is not including baseboards installation
OPTION2.
Lift the floor at the area 45"X148" . Leave the existing level near the fireplace. Install new hardwood floor at all 1st floor. (As we don't know the total area area for the 1ste floor, we assume it is 900sf)
Cost before tax (Labor + Rough Material) : $5900
Remove existing floor - $900, dispose existing floor - $250 - Subtotal: $1150
Lift a floor level at the area 145X148, Put subfloor at the area - $2500
Put new floor - engendered click and lock floor through the first floor. $2.50 per sf - For 900sf - $2250
Included: Labor and Rough Materials
Project Duration: 5-6 business days.
Price is not including baseboards installation
House Painting Cost before tax (Labor + Rough Material) : $6900
This quote includes labor and rough materials.
AD Master Construction will handle pickup, transportation, and delivery of all customer-supplied materials to the job site.
Any deviations from the above scope of work or additional changes will require a change order and may affect the project cost or completion time.






































