CLIENT ZONE
Maureen
Updated 11/5/2025
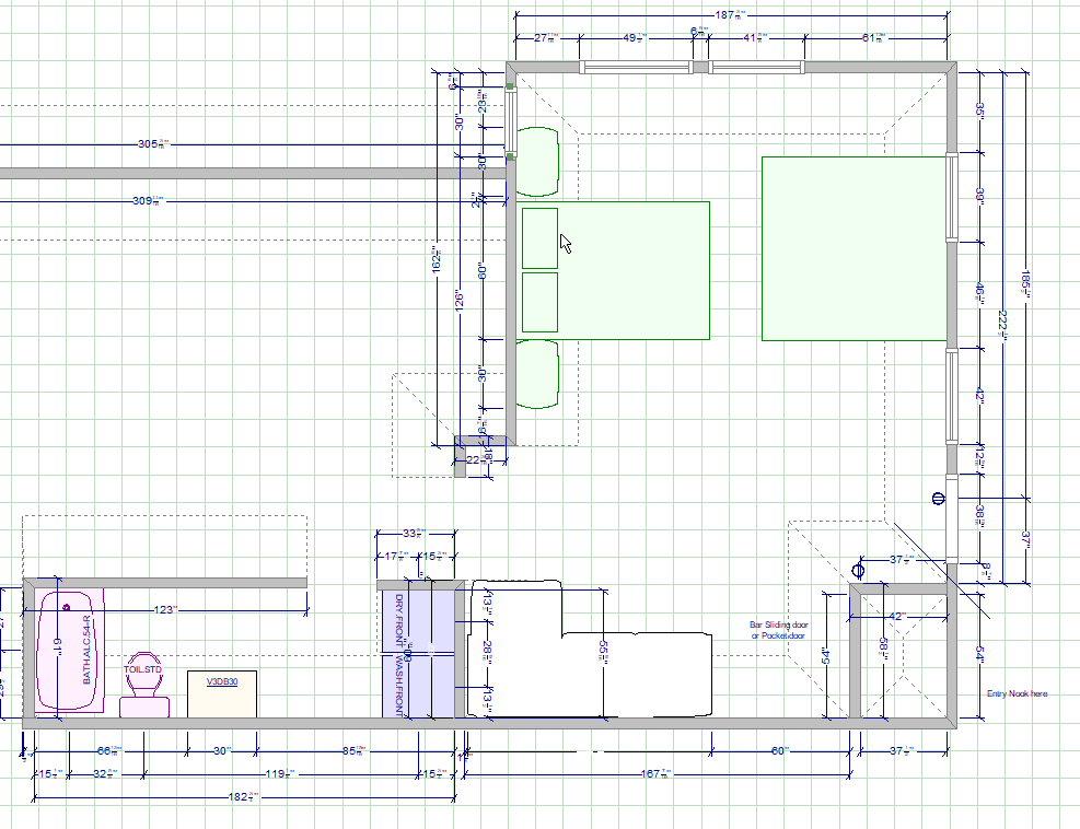
ADDITION. BEDROOM.
SCOPE OF WORK.
Drywall
1 Drywall - ( walls + ceiling) area 15X23=360sf — see plan.
Level 4. Finishing (jointing, joint filler (explicit breakout), taping, Texturing, Priming.
Cost: $2800 Labor and Rough Materials
------------------------------------
2 Drywall - Painting drywall ( walls + ceiling) -
Painting walls & ceilings, labor + paint
Cost: $1,700 Labor and Rough Materials
-------------------------------
3. Subfloor (If needed )
Plywood Installation. Leveling. Prep for Flooring
Cost: $550 for Labor
Cost: Estimated plywood material and delivery: $645
-------------------------------------------------------------
4. Flooring
Flooring Installation. Engineered wood 3/4" click and lock
Cost: $950 for Labor and Rough Materials
-------------------------------------------------------------
5. Install door between family room and bedroom
Door Installation - from Family Room to Bedroom. We assume dry wall is finished with the right size opening. Includes Box, Door Unit Installation, Molding (wrap), adding the final touches of hardware and trim. Painting of door and trim is not included - see cost of painting under Millwork Painting
Cost: $200.00 Labor
------------------------------------------
6. Accordion bifold Door Installation - Closet.
Door Unit Installation, adding the final touches of hardware and trim
Painting of door and trim is not included - see cost of painting under Millwork Painting
Cost: $200.00 Labor
------------------------------------------------------------------
7. Exterior door casing inside.
Casing is a specific type of trim used around door and window openings to cover the gap between the frame and the wall.
Cost: $90.00 for 2 exterior doors
---------------------------------------------
8. Window Casing - Only Window Sill
Window Casing - Only Window Sill
Cost: $200.00 for 4 windows
-----------------------------------------------------
9. Fireplace Tiling
Includes tiling front and sides. Assume all electrical and drywall is prepared for tiling. For the niche additional charge will apply.
Cost: $1420 Labor, rough materials included. Tiles not included
---------------------------------------------------
10. Baseboard Installation.
Painting and caulking not included in the cost - see cost of painting /caulking under Millwork Painting
Cost: $265. Baseboards
-------------------------------------------------------
11 Millwork Painting .
Includes interior doors, doors trim, baseboards painting and baseboards caulking.
Cost: $1500 Labor
Estimated Material Cost: $870 Baseboards, Door trims, Paint
---------------------------------------
MAIN FLOOR AREA INCLUDING FAMILY ROOM, KITCHEN, LIVING ROOM, ENTRY PASSAGE.
SCOPE OF WORK.
1. Fixing Bumps/small cracks. Painting all walls in Entry, Passage, Living, Family, Kitchen
Walls - Fixing Bumps/small cracks - mudding, texturing.
Painting all walls in Entry, Passage, Living, Family, Kitchen
Cost: $4700 for Labor and Rough Materials. Paint is included
-----------------------------------------
2. Removing existing old floor on main floor. Disposal
Removing existing old floor - Entry, Living, Kitchen, Family room. Disposal
Cost: $1200 for Labor and Disposal
------------------------------------------------
3. Install /Raise Subfloor in the living room. Level subfloor with entry and kitchen level. (electrical work is not included)
To raise a subfloor by 3 inches, can use laminating multiple layers of plywood (3/4" + 1/4") or OSB to reach the desired thickness or creating a new framed subfloor with new joists or stringers on top of the existing one.
Cost: TBD
Cost: TBD
-------------------------------------------------------
4. Install Engineered Hardwood in living dining room
kitchen, Family room, hallway
Total 900 sf
Install Engineered hardwood (click and lock) Living-Dining Room, Kitchen, Family, Hallway. Total 900 sf
Total Cost: $ 2250 Labor, Rough Materials
------------------------------------------------------
8. Kitchen. Remove old kitchen (countertop not included)
Remove the old kitchen cabinets, appliances, disconnect electrical . Dispose the old cabinets. (Removing countertop not included)
Cost: $1000 Labor, Rough Materials
-----------------------------------------------------------
9. Kitchen. Install new kitchen cabinets.
Install New Kitchen Cabinets (Cabinets Assembled and Delivered by Pius) Countertop re-installation/installation not included
Cost: $1700 Labor, Rough Materials
------------------------------------------------------------------------
10. Installing Appliances.
Installing Appliances, Microwave, Dishwasher connection, Faucet installation.
Cost: $600 Labor, Rough Materials







































