CLIENT ZONE
Kristyn
Client Name: Kristyn
Location: Kenmore, WA
Scope of Work: Kitchen Design, Kitchen Remodel
Kitchen Remodel
After reviewing your kitchen, I’d like to share my honest professional opinion. I believe a complete kitchen remodel would be the best direction. Given the value of your property and location, this will be a strong long-term investment and will significantly improve functionality and aesthetics.
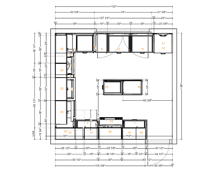
1. Kitchen Concept & Layout
Current layout:
The existing layout is not practical. When you enter the kitchen, the first cabinet blocks the flow, and the space near the window is not utilized efficiently.
Recommended options:
- Option 1: Redesign the kitchen layout (see attached plan). This includes removing the bulkhead/soffit above the wall cabinets and creating a more functional arrangement.
- Option 2: Open-concept kitchen. This includes all of Option 1 plus opening the wall to the dining room. We would add a peninsula in place of the existing wall to create more usable counter space and a modern, open feel.
2. Cabinets
Your current cabinets are from the 1960s. Replacing only the doors while keeping the existing boxes is not recommended — it would still feel like the same old kitchen, and the cost would be comparable to installing
entirely new cabinetry.
I recommend
slim shaker-style cabinets with wood doors and plywood boxes. These are available in white, wood tones, dark grey, and green, and you can also combine two colors for a modern look.
See the color options here
3. Countertops
For durability and aesthetics, I recommend quartz countertops. They require low maintenance, have excellent longevity, and come in many styles that pair well with the shaker cabinetry.
OPTION 1 – Full Kitchen Remodel (Same Footprint, New Layout)
Scope of Work
- Demolition
- Remove existing cabinets, countertops, appliances and flooring.
- Remove the bulkhead/soffit above the wall cabinets.
- Patch walls and ceiling, apply texture, and prepare surfaces for paint.
- New Kitchen Layout
- Adjust plumbing, electrical, and ventilation as required for the new layout.
- Relocate outlets and switches per code.
- Install new lighting (wall lamp, recessed lights + under-cabinet lighting optional).
- Skylight - remove outdated framing, do a modern trim
- Cabinetry
- Install new slim shaker cabinets (wood doors, plywood boxes).
- Upper, base, and tall cabinets according to the new plan.
- Install Soft-close hardware i
- Countertops
- Supply and install quartz countertops.
- Standard eased edge; upgrade options available.
- Backsplash
- Install tile backsplash
- Flooring
- Install tile flooring
- Painting
- Paint walls, ceiling, trim, and baseboards.
- Appliance Installation
- Install new appliances.
- Modify cabinet for built-in microwave if needed.
PHOTOS
Kitchen Plan. Cabinets: Slim Shaker, White/Wood
Proposed Cabinets (Slim Shaker, white color) - see here



































