CLIENT ZONE
Project Estimate
Client Name: Chris Master Bathroom Remodel Kitchen Remodel Flooring
Location: Kirkland
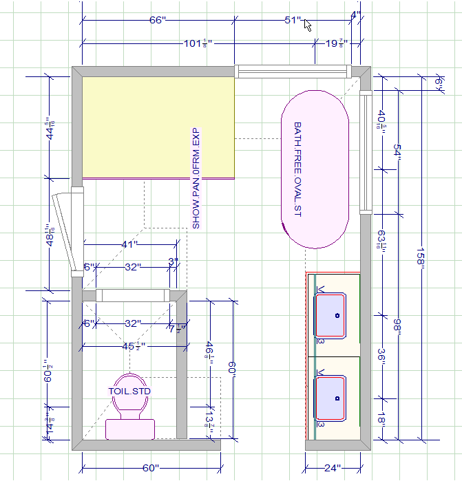
Project1: Master Bathroom Remodel. This renovation involves a full upgrade of the bathroom, including existing shower demolition, new shower installation , removing corner bath , new bath tube with new drain location, new vanity, heated flooring, accessories, and paint.
This is Estimation for the slim shaker cabinets in wood (we can use also black or white cabinets for accents) . Includes kitchen, pep kitchen and TV area. Includes quarts countertop for kitchen+ prep kitchen+ vanity1+vanity2. Includes contractor's discount
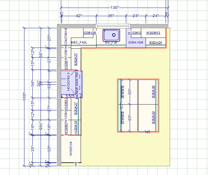
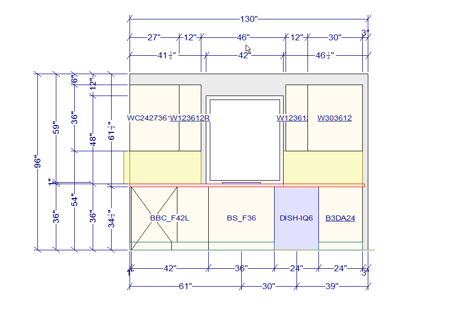
This is Existing kitchen plan. But if you want to go forward, we need to discuss the new design and features. Also appliances specs, cabinet specs, etc and create updated kitchen plan.
This is plan for existing prep kitchen and TV area.
BATHROOM
SCOPE OF WORK (bathroom area: 143 sf including toilet area/room
Preparation and Demolition:
Remove floor (carpet) , corner bath tube, tile from walls, shower base, shower walls, cabinets, toilet, vanity.
Rough-In, Electrical, Plumbing
Electrical work:
- Outlet for the LED Light in the mirror ( if mirror is with LED) . Add additional GFCI plug near vanity if needed. Recessed lights with a dimmer.
- Discuss what additional electrical outlet client wants to add or move existing.
- Heated Floors. (Including toilet area) Plan and prepare the subfloor. Lay and secure the heating mat or cable. Install the floor temperature sensor and connect the system to the thermostat and power supply. Outlet for the heating floor. ! Check ! Heated floor sometimes requires a separate dedicated line and breaker. Before installing in-floor heating, check to be sure your existing electrical system can handle the new circuit, if it needs one. In general, between 8 and 12 watts per square foot of heated floor. We can use floors on a different circuit than the rest of the bathroom. Ideally, a standalone breaker for the floors, but definitely a different circuit. Assembled and installed in accordance with the manufacturers' instructions.
Plumbing:
Shower, New shower System, Mixer, Check Shower Drain . Move the Bath tube drain. Check existing vanity plumbing and new vanity cabinet. Made adjustment if needed. Install-reinstall toilet, 2 faucets
Finishing
General Notes
We do
not recommend curbless showers as they require a more expensive linear drain system to properly manage water. Additionally, the entire bathroom floor would need to be waterproofed, increasing both labor and material costs and creating a higher risk of leaks.
This estimate is based on a
curbed shower design.
Tiling
- Tile shower walls from floor to ceiling.
- Install and tile shower niche (approx. W32" x H16"). Mitered tiles (are cut at a 45-degree angle, creating a seamless, minimal design)
- As the niche is on an exterior wall, additional planning will be required to prevent cold spots, condensation, and potential mold issues.
- Tile the shower floor
- Tile shower walls and bathroom walls per the approved plan.
Waterproofing & Substrate
- Use cement board or equivalent (DensShield, Schluter Kerdi-Board, or Wedi Board) for shower walls and floor substrate.
- Apply waterproofing membrane to all wet areas for moisture protection.
Shower Features
Shower glass door / partition – Discuss the options- Sliding door, Frameless sliding glass partition? Custom? Entrance to the shower
- Check availability of ready-made options for the specified dimensions.
2. Bathroom Floor and Walls
Flooring
- Install floor tile (24” x 24”) including toilet room
- Tile wall 36" height on the bath tube area (Mitered tiles for window corners (cut at a 45-degree angle) (24” x 24” tile)
- Ensure proper leveling, alignment, and waterproofing at all transitions.
3. Vanity Area
Vanity Unit
- Install vanity unit:
- Option 1: One unit 72"–76" wide with legs or floating design with drawers.
- Option 2: Two units 36" x 36" each with drawers.
- Install vanity-mounted faucets (to be confirmed with the client).
- Connect plumbing and secure units properly.
4. Paint & Finishes
Paint
- Patch and prepare walls and ceiling for painting.
- Apply moisture-resistant paint on all surfaces.
- Install baseboards.
5. Lighting
- Install vanity wall lighting per design.
- Install new recessed lighting with a dimmer switch for adjustable ambiance.
6. Bathroom Accessories
- Install selected accessories, including but not limited to:
- Towel bar
- Robe hook
- Toilet paper holder
- Additional accessories as specified.
Cost before tax : $15,500
Included: Labor and Rough Materials. Floor Heating Kit is not included in the cost*
Project Duration: 12 15 business days
If paid by Credit Card: client pays transaction fee
Included Warranty: 3 years
*A floor heating kit is a collection of components, typically electric, that provides radiant heat under a finished floor. Priced Per coverage. It includes a heating element (mat or cable), sensors, and a thermostat. All Instructions what to purchase will be provided.
KITCHEN
SCOPE OF WORK
Complete Kitchen Remodel
Prepare New Plan and Design, including electrical and plumbing before the work starts.
Areas Involved:
- Main Kitchen: 130" x 168"
- Prep Kitchen: 68"
- TV Zone: 127"
1. Preparation and Demolition.
- Remove existing flooring in the kitchen, prep kitchen, and TV zone.
- Remove all existing kitchen cabinets, countertops, and appliances.
- Properly dispose of all demolition debris off-site.
- Prepare all surfaces for new installation, including subfloor, floor and wall inspection.
2. Rough-In Work
Electrical:
- Adjust or replace existing wiring and outlets as required by the new kitchen layout and design.
- Relocate or install new outlets, lighting, and appliance connections as necessary.
Plumbing:
- Modify or relocate plumbing lines for sink, dishwasher, and refrigerator as required by the new design.
3. Kitchen Installation
Cabinet Installation:
- Install pre-made, fully assembled kitchen cabinets according to the approved design plan.
- 12 base cabinets
- 16 wall cabinets
- Ensure precise leveling, alignment, and secure attachment of all cabinets.
- Install decorative side panels on the island and othe finishes if required.
Countertops & Fixtures:
- Prepare and install new countertops.
- Install kitchen sink, faucet and connect plumbing fixtures.
Installation and finishing
- Cabinetry: Installing new cabinets, shelving, toe kick, panels and hardware like pulls and knobs per design
- Countertops: Installing new countertops.
- Painting: Paint 2 coats of paint to wall in TV area or other kitchen areas as required by new design. (Paint is included)
Backsplash: Installing the tile backsplash and any necessary edging or grout per new design.
- Install kitchen backsplash from countertop up to the bottom of wall cabinets.
- Install backsplash in hood area up to the ceiling or top as per design.
- Install backsplash in window area up to the ceiling or top as per design.
- Lighting: Installing new light fixtures, including wall lights, pendant lights, under cabinet lights and dimmer switches.
- Appliances: Installing new appliances and connecting them to their respective electrical and plumbing lines. Reinstall and reconnect all kitchen appliances, ensuring proper alignment and functionality.
Cost before tax : $ 8500
Included: Labor and Rough Materials.
Estimated Cost for kitchen cabinets, prep kitchen cabinets, TV area and quarts countertop before tax : $ 12500
Included: Pre-made cabinets - assembled, quarts countertop - installed
Project Duration: 12-15 business days
STAIRS
SCOPE OF WORK
1. Demolition & Preparation
- Site preparation and protection of surrounding floors and walls.
- Remove existing carpet on all stair treads and risers.
- Remove existing railing on one side (approx. 4 ft).
- Disposal of debris off-site.
2. Carpentry – New Wood Stairs ( 7steps +landing+ 7steps)
- Adjust and redesign the first step ( as discussed with client).
- Supply and install new solid wood treads and risers (e.g., white oak or maple).
- Sanding and finishing (clear coat or stain + sealer).
3. Railing Replacement
- Supply and install modern black metal railing on one side (approx. 4 ft).
- Options: square steel pickets or modern horizontal/vertical tube railing.
- Anchoring to meet safety codes.
4. Finishing
- Final sanding and touch-ups.
- Caulking and painting/staining of trim as needed.
- Final cleanup of site.
Cost before tax : $ 4800
Included: Labor, Rough Materials, Finishing Materials
Demolition & Prep Remove carpet, railing, prep, Wood Treads & Risers Installation, First Step Reconfiguration, Custom design / carpentry, Sanding & Finishing, (Wood) Stain or clear coat, New Metal Railing (4 ft), Modern black railing + install, Cleanup & Finishing Touches
FLOORING
Flooring:
Cost for carpet installation before tax: $1,410 ( $ 1.5/ SF for carpet installation, Area: 940 SF. )
Cost for engineered wood installation before tax: $6500 ($5.00/SF for engineered hardwood | click and lock | installation Area: 1300 SF ) &
Included: Labor, Rough Materials
Subfloor preparation, and removal of old carpet - included
Demolition & Prep, Disposal to Remove Existing Floor - included





































