CLIENT ZONE
Project Estimate
Client Name: Amanda
Location: Shoreline, WA
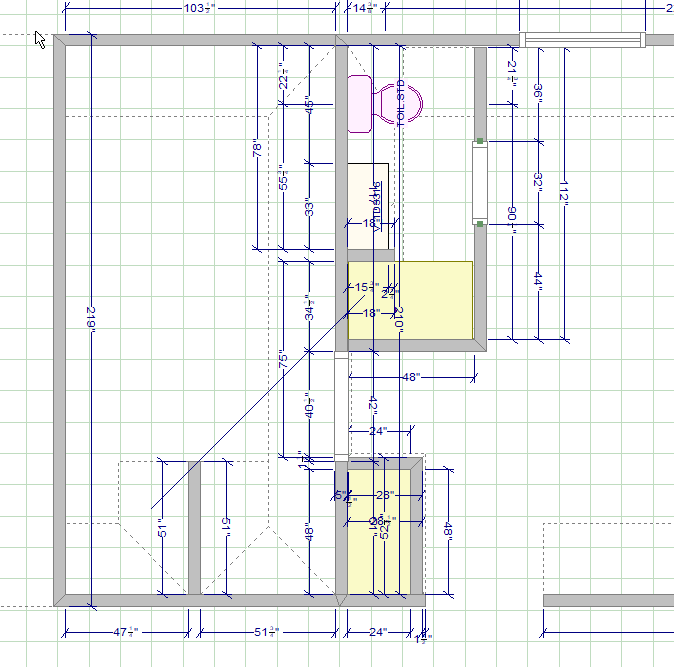
Scope of Work: Convert Existing Space Converting Closet/Adding a bathroom to the Master Bedroom, Adding New closet
Converting Closet/Adding a bathroom to a Master Bedroom
SCOPE OF WORK
Master Closet Expansion & Conversion to Master Bathroom (Approx. 40 sq. ft.)**
GENERAL INFORMATION
Project consists of expanding the existing master closet area and converting it into a new master bathroom.
Total area of the new bathroom: approximately 40 sq. ft.
All construction will follow finalized architectural plans and applicable building codes.
1. Demolition & Site Preparation
- Protect surrounding areas as needed.
- Demolish existing master closet elements per plans.
- Remove debris and provide proper garbage disposal.
2. Framing
- Frame new walls, openings, pocket door and layout according to architectural plans.
- Prepare framing for shower, plumbing lines, and bathroom fixtures.
3. Plumbing (Contractor)
- Rough-in plumbing for shower, vanity, toilet, and any additional fixtures per plan.
- Install necessary supply and drain lines.
- Pressure test all new plumbing.
- Final plumbing connections after finishes.
4. Electrical (By Client)
- Electrical rough-in, wiring, lighting, switches, GFCI outlets.
- Exhaust fan wiring and installation. (roof or wall per plan)
- Final electrical trim.
5. Subfloor & Shower Pan Preparation
- Open existing subfloor as needed for plumbing.
- Reinforce or repair subfloor if necessary.
- Heated Floor preparation
- Build and waterproof shower floor system.
6. Drywall & Insulation
- Install insulation where required.
- Hang, tape, and finish drywall in the new bathroom area.
- Prepare surfaces for tile and painting.
7. Waterproofing
- Waterproof shower walls, floor, and all wet areas using approved membrane systems.
8. Heating (Ditra Heat System)
- Install Ditra Heat underlayment on bathroom floor.
- Connect heating system (electrical by client).
9. Tile Work
- Install tile on shower walls.
- Install tile on bathroom floor
- Grouting and sealing.
10. Fixtures & Trim
- Install shower fixtures, vanity, faucet, toilet, and accessories (client-supplied or contractor-supplied as noted).
- Install exhaust fan (electrical by client).
- Install baseboards, trim, and necessary details.
11. Final Steps
- Caulking, cleanup, and touch-ups.
- Prepare area for final inspections.
- Baseboard
- Painting
Materials. Proposed Finishing Materials List
(click on the image)
Paint: The best Sherwin-Williams paint for bathrooms is either Emerald Interior or Duration for their moisture and mildew resistance. Emerald is highly durable and excels in high-humidity areas, while Duration is also excellent and includes a built-in mold and mildew inhibitor. For a budget-friendly option, SuperPaint is a durable choice.
Our color choice: Alabaster, Pure White, and Greek Villa
Electric Heated Floor
One of the main benefits of heated floors is their ability to provide consistent warmth throughout the entire bathroom. By distributing heat evenly and bypassing the energy loss often associated with ductwork, it is a compelling choice for environmentally-conscious homeowners. In fact, it's estimated to be 20-25% more energy-efficient than conventional heating approaches.
Cost Breakdown for Heated Floors
Material Costs
Electric heating mats and wires, commonly used for smaller installations, typically range from $8 to $15 per square foot.
In addition to the primary heating elements, you must also consider the cost of additional materials required for installation, such as:
- Thermostats: Cost between $100 to $300 each, essential for controlling the system's temperature to ensure comfort and energy efficiency.
- Insulation: Typically ranges from $1 to $5 per square foot, helping to prevent heat loss and ensuring that the energy used goes directly into warming the floors.
These components add to the initial investment but are necessary for maximizing the efficiency and longevity of your underfloor heating system.
Installation Costs
The installation costs for heated floors can vary depending on several factors. On average, labor costs range from $10 to $20 per square foot, whether you're installing an electric system. It's important to consider that these figures can fluctuate based on specific project details.
Several factors influence these labor costs, including the size of the area being heated and the type of existing flooring. For instance, larger spaces may require more time and expertise, potentially increasing the overall cost. Additionally, if the existing flooring is difficult to remove or requires special preparation, this can also add to the labor expenses.
Total Project Cost
Cost before tax (Labor + Rough Material) :
Optional Addition - Heated Floors:
Heated Floor Rough Materials: $ 1000
Heated Floor Installation Cost $600
Included: Labor and Rough Materials
Project Duration: 4 weeks
Included Warranty: 3 years
-----------------------------------------------------
Suggested Finished Material Cost (Finished Material purchased by Client) : $5000
Includes the following:
Finished Materials (Tiles for shower wall, Tiles for Bathroom Floor, Shower System, Shower Glass Doors or Sliding Doors, Toilet, Vanity, Vanity Faucet, Wall lamps, Recessed Lights, Bathroom Accessories, Wall Mirror, Finished Paint)
----------------------------------------------------------------------------------
Client Responsibilities
- Provide complete architectural plans, engineering (if required), and permit set.
- Obtain and pay for all permits related to the project.
- Provide all electrical plans, electrical permit, and preparation required for rough-in and final electrical.
- Supply the following materials if preferred (optional or per plan):
- Vanity
- Wall sconces
- Mirror
- Shower fixtures (valve, trim, handheld, etc.)
- Toilet
- Tile (floor & walls)
- Exhaust fan (if owner-supplied)
EXCLUSIONS
The following items are not included unless specifically listed in the contract:
- Architectural plans, engineering, permits, and inspections fees
- Electrical labor (rough-in and final)
- Mold, asbestos, structural repairs, or unforeseen conditions inside walls, floor, or ceiling
- Relocation of major structural elements unless shown in plan
- Painting of areas outside the project zone
- Custom glass shower door (can be added if needed)
- Any work not specifically listed in the Scope of Work
PROGRESS PAYMENT SCHEDULE
Total Contract Amount: $______________
Payments to be divided as follows:
- 10% – Deposit
Upon contract signing and scheduling. - 40% – First day of Demolition, Framing & Rough-In Start
Includes demolition, framing, plumbing rough-in, and electrical rough-in access. - 40% – After Tile Completion
Includes waterproofing, heated floor installation, tile installation, and grout. - 10% – Final Payment
After completion and final walkthrough.




































